企業実習での金型作成 その1
| 連携企業 | 期間 | 参加生徒 |
|---|---|---|
| 株式会社 鈴木(外部サイトにリンクします) | 平成20年4月から平成21年1月 | 機械科3年:3名 延べ人数69名 |
研究の目的
主要産業の一つである金型技術について企業と連携して実践的な技術を学習させると同時にものづくりの手法を習得させる。また、企業での実習を通して、社会人としての心構えを養う。
実施内容
精密金型製造企業である株式会社鈴木様と連携をして、通年を通しての生徒実習としてプレス金型の製作を行う。
実習時間としては、3年次の設定科目である課題研究(3単位)の時間を活用して企業に伺い実習を行う。企業には計22回伺った。
プレス加工については1年次に機械工作の授業で学んではいるが教科書には詳しく載っておらず実際のプレス金型製作については、ほとんど理解していないため、プレス金型の製作について理解できるよう会社見学からはじめた。
ものづくりの手法としてはまず制作する物の構造や機構などを理解しそれに沿った設計を行う。次いで設計したものを具体的な図面(組立図・部品図)に起こし、それぞれの部品を加工し組立てを行い完成となる。今回の生徒実習では、このものづくりの各段階において企業の技術者の方に指導をお願いし、実際に企業でのものづくりを生徒に体験 させながら一つのプレス金型の製作を試みました。
実習に際しては企業の方と話し合いをし、簡単な抜型ではなく、実際によく用いられている順送曲抜型にすること、また、年間計画を次のように決めました。
| 期間 | 実習内容 | 備考 |
|---|---|---|
| 6月から8月 | 製品設計 金型の理解 金型設計 |
|
| 9月から11月 | 部品製作 |
|
| 12月 | 組立 | |
| 1月 | 調節 まとめ |
|
夏休み中は、各生徒が担当した部品図の製図に当て、9月から部品加工実習ができるように考えました。
今回製作するプレス製品は、生徒に考えさせた図のようなペーパークリップとしました。写真は、完成したプレス製品です。
この製品は、比較的簡単な形状で、抜き曲げ加工があり、初めての順送抜曲型の製作にはよいのではないかと考え、企業の方とも相談し決めました。
金型を製作するためには、金型についての知識が必要になるため、金型の基本的な構造や必要な部品について学習し、抜きや曲げに必要な力についても講義を受けた。今回 製作する金型の簡略構造図は次のようになります。
また、製作するペーパークリップの製作行程を金型に配置するレイアウトは次の写真になります。
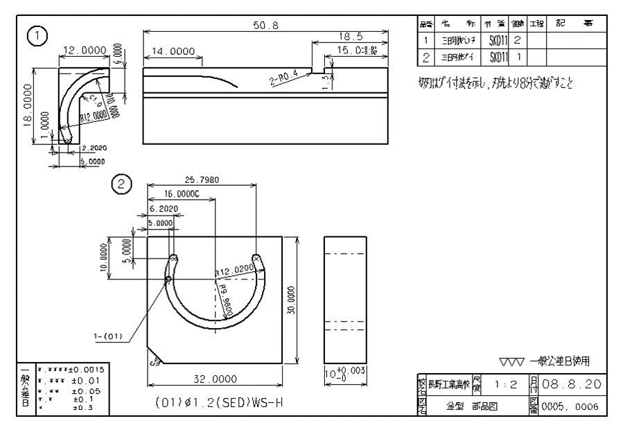
設計の最後にレイアウト図を基に上下組立図を製図しなくてはいけないが、生徒には困難な点が多いことや時間が少ない事などから企業の方に製図していただいた。生徒は この組立図の説明を受けて金型の理解を深めると共に組立図を基に抜き、曲げに必要なパンチ・ダイについて部品図の製作を夏休みに行った。
三日月抜きパンチ・ダイ部品図、完成部品
外形抜きパンチ・ダイ部品図、完成部品









